About this office space
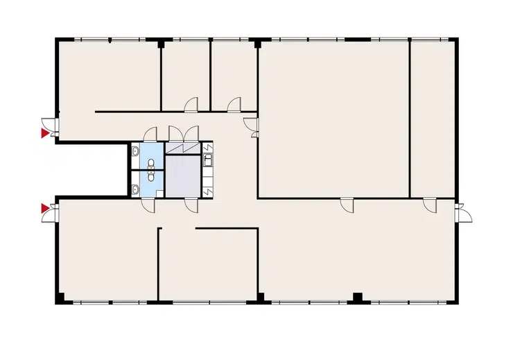
Multi-purpose and ready-to-move-in first floor office space for rent at Technopolis Kontinkangas campus. Part of the space is laboratory space with ESD flooring, the office side has textile tile flooring and the corridor walls are glass with sliding doors. The space also has its own toilets and kitchen. The stated square footage contains a share of the common areas.
Kontinkangas campus has a cozy Stone lunch restaurant and a self-service kiosk. The campus is located next to Oulu University Hospital and only a couple of kilometers from the center of Oulu. The nearest bus stops are right next to the campus. Parking spaces can be found in the building's courtyard and in the parking garage.
Download a PDF brochure of this space
PDFConvenient location near great transport links
- Bus less than 100 m
- Railway station 2.0 km
- Airport 15 km















