Tietoa toimitilasta
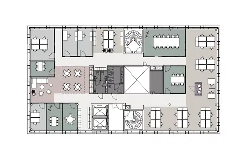
Vuokrataan ylimmässä kerroksessa sijaitseva 550 m² toimitila upeilla merinäköaloilla Technopolis Ruoholahdessa Helsingissä. Asiakkaalla on käytössään kokonainen oma kerros ja koko Ruoholahden upeimmat näköalat jokaiseen suuntaan. Toimitilasta on saatavilla valmis sovituskuva, josta näkee tarkemman työpistemäärän ja tilan toiminnot. Toimistossa on ilmastointi, joka takaa miellyttävän lämpötilan vuoden ympäri.
Tila on vuokrattavissa myös kalustettuna, lisäksi saatavilla työtilan suunnittelu- ja muuttopalvelut helpottamaan muuttoa. Ota yhteyttä ja tule tutustumaan paikan päälle.
Technopolis Ruoholahden kampus sijaitsee Länsiväylän varrella Salmisaaren suositulla yritysalueella. Merellinen Salmisaari tunnetaan erinomaisista liikenneyhteyksistä, ja sinne on helppo tulla sekä autolla että julkisilla kulkuneuvoilla. Kampuksella on loistavat pysäköintimahdollisuudet.
Technopolis Ruoholahti tarjoaa laadukkaita ja tarpeidenne mukaan helposti muunneltavia toimitiloja. Kampukselta löydät arjen tueksi myös monipuoliset palvelut, jotka tekevät päivistäsi sujuvia. Palveluihin kuuluvat kehuttu aulapalvelu, tyylikkäät kokoustilat, kaksi suosittua ravintolaa ja moderni kuntosali.
Lataa PDF-esite tästä tilasta
PDFErinomainen sijainti toimivilla liikenneyhteyksillä
- Metro 1,1 km
- Raitiovaunu 850 m
- Bussi 120 m
- Juna-asema 2,8 km
- Lentokenttä 29 km


























