Tietoa toimitilasta
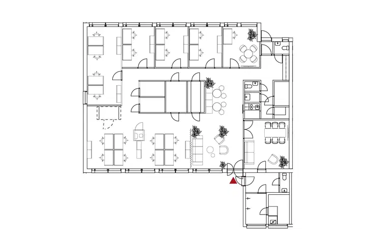
Ainutlaatuinen saunallinen toimitila vuokrattavissa Technopolis Linnanmaan kampuksella. Tässä tilassa on erillisiä työ- ja neuvotteluhuoneita, avotilaa, keittiö, sosiaalitilat saunatiloineen sekä wc:t. Ilmoitettu neliömäärä sisältää jyvityksen kiinteistön yhteisistä tiloista.
Linnanmaan kampus tarjoaa kattavat palvelut asiakkailleen. Aulapalvelu ja Compass Groupin ravintola Garden palvelevat Teknologiantie 1 kiinteistössä. Kokouksia varten löytyy sekä pieniä että suurempia kokous- ja koulutustiloja, jotka soveltuvat hyvin erilaisille tilaisuuksille ja tapahtumille.
Kohteeseen on helppo saapua niin autolla kuin julkisilla liikennevälineillä. Rakennuksen edustalla on pysäköintitilaa ja vieraspysäköinti on Technopoliksen asiakkaiden vieraiden käytettävissä ilmaiseksi. Lähialueella on monipuolisesti palveluita ja mm. Oulun Yliopisto, Linnanmaan Prisma ja Technopoliksen kuntosalikumppani ovat aivan naapurissa.
Lataa PDF-esite tästä tilasta
PDFErinomainen sijainti toimivilla liikenneyhteyksillä
- Bussi 650 m
- Juna-asema 7,0 km
- Lentokenttä 21 km


























































