Tietoa toimitilasta
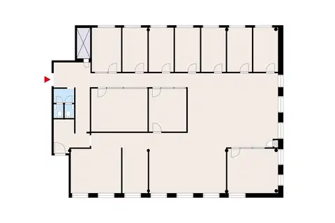
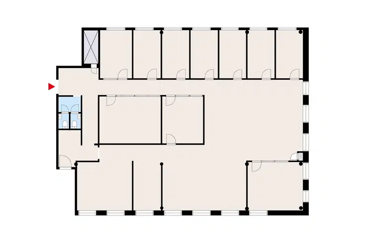
Vuokrattavana Technopolis Ruoholahdessa Helsingissä kolmannen kerroksen muuttovalmis ja toimivalla pohjalla varustettu 374 m² toimisto, josta on upea merinäköala. Tilassa on useita eri kokoisia huoneita, avotilaa, keittiö sekä wc-tilat, ja ilmastointi, joka takaa miellyttävän lämpötilan vuoden ympäri. Pohjaan on mahdollista tehdä muutoksia asiakkaan toiveiden ja tarpeiden mukaan.
Tila on vuokrattavissa myös kalustettuna, lisäksi saatavilla työtilan suunnittelu- ja muuttopalvelut helpottamaan muuttoa. Ota yhteyttä ja tule tutustumaan paikan päälle.
Technopolis Ruoholahden kampus sijaitsee Länsiväylän varrella Salmisaaren suositulla yritysalueella. Merellinen Salmisaari tunnetaan erinomaisista liikenneyhteyksistä, ja sinne on helppo tulla sekä autolla että julkisilla kulkuneuvoilla. Kampuksella on loistavat pysäköintimahdollisuudet.
Technopolis Ruoholahti tarjoaa laadukkaita ja tarpeidenne mukaan helposti muunneltavia toimitiloja. Kampukselta löydät arjen tueksi myös monipuoliset palvelut, jotka tekevät päivistäsi sujuvia. Palveluihin kuuluvat kehuttu aulapalvelu, tyylikkäät kokoustilat, kaksi suosittua ravintolaa ja moderni kuntosali.
Lataa PDF-esite tästä tilasta
PDFErinomainen sijainti toimivilla liikenneyhteyksillä
- Metro 1,1 km
- Raitiovaunu 850 m
- Bussi 120 m
- Juna-asema 2,8 km
- Lentokenttä 29 km


























