Tietoa toimitilasta
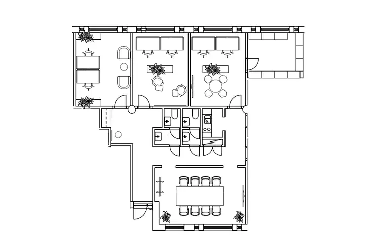
Technopolis Linnanmaan kampukselta vuokrattavana ensimmäisen kerroksen toimistotila, jossa on neljä työhuonetta, oma keittiötila sekä wc:t. Tilassa on tehokas koneellinen ilmanvaihto ja tuloilma on jäähdytetty. Tilaan oma sisäänkäynti suoraan pysäköintipaikalta. Ilmoitettu neliömäärä sisältää jyvityksen kiinteistön yhteisistä tiloista.
Linnanmaan kampus tarjoaa kattavat palvelut asiakkailleen. Kokouksia varten löytyy sekä pieniä että suurempia kokous- ja koulutustiloja tarpeiden mukaan. Kampuksen lounasravintola tarjoaa maittavan lounaan maanantaista perjantaihin. Päivän aikana on myös mahdollisuus hyödyntää aulapalvelun asiantuntevaa apua, joka on aina valmiina tukemaan asiakkaita.
Sijainti moottoritien varrella mahdollistaa helpon ja ruuhkattoman liikkumisen niin autolla kuin julkisilla liikennevälineillä. Rakennuksen piha-alueella on runsaasti pysäköintitilaa, ja Technopoliksen asiakkaisen vieraille on tarjolla ilmainen vieraspysäköinti.
Lataa PDF-esite tästä tilasta
PDFErinomainen sijainti toimivilla liikenneyhteyksillä
- Bussi 500 m
- Juna-asema 7,0 km
- Lentokenttä 21 km



























































