Tietoa toimitilasta
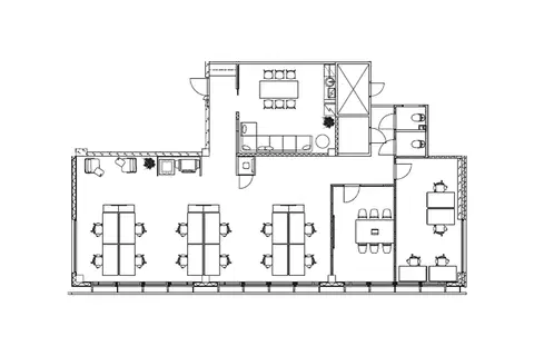
Technopolis Linnanmaan Elektroniikkatieltä vuokrattavissa tasokas toisen kerroksen toimistotila, joka käsittää avotilaa, työhuoneita, neuvottelutiloja sekä omat keittiö- ja sosiaalitilat. Ilmoitettu neliömäärä sisältää jyvityksen kiinteistön yhteisistä tiloista.
Linnanmaan Kampus tarjoaa laajan valikoiman erilaisia palveluita helpottamaan asiakkaidensa arkea. Kiinteistön pääaulassa toimii vierailijoita opastava aulapalvelu. Kampuksella palvelevat Compass Groupin ja Sodexon lounasravintolat, joissa on tarjolla lounasta arkisin. Lisäksi kampukselta löytyy monipuolinen valikoima erikseen vuokrattavia kokoustiloja eri tarpeisiin, muun muassa lounaskabinetteja, koulutustiloja sekä auditorio. Yhteiskäyttöiset pukeutumis- ja suihkutilat ovat erityisesti työmatkapyöräilijoiden suosiossa.
Linnanmaan kampus sijaitsee Oulun yliopiston kupeessa, vain noin 10 minuutin ajomatkan päässä Oulun keskustasta. Alueelle pääsee helposti myös julkisilla kulkuvälineillä, ja aivan lähettyvillä sijaitsee kauppakeskus Oulun Ideapark. Rakennuksen pihalta löytyy edullisia pysäköintipaikkoja asiakkaille, ja pääsisäänkäynnin edessä on maksuttomia vieraspysäköintipaikkoja vieraiden käyttöön.
Lataa PDF-esite tästä tilasta
PDFErinomainen sijainti toimivilla liikenneyhteyksillä
- Bussi 300 m
- Juna-asema 7,0 km
- Lentokenttä 22 km



























































