About this office space
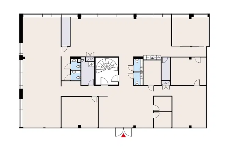
A bright and inviting 385 m² top-floor office space available for rent at Technopolis Otaniemi, Espoo, in Innopoli 3, Building C. The layout features several rooms and open space. The space has also its own kitchen and toilet facilities. The space has a neat carpeting and offer stunning views towards Otaniemi. The office is equipped with air conditioning to ensure a comfortable temperature year-round. The space can also be combined with the adjacent spaces to create a office solution that covers entire 6th floor.
The space can be rented furnished, with workplace design and moving services to make your relocation easy. Contact us for more information and come over to see the space.
Technopolis Otaniemi is located near the Aalto University metro station, along the light rail and numerous bus routes. In addition, Finland’s busiest highway, Ring Road I, runs right next to the campus, and there are lots of parking spaces available on the campus.
Thanks to the wide range of services, you can focus solely on your business. Services on campus include friendly reception service, a diverse selection of meeting rooms, several high-quality restaurants and multiple well-equipped gyms. The campus also features hair salons, a dental clinic, a veterinary clinic and two car washes.
Download a PDF brochure of this space
PDFConvenient location near great transport links
- Metro 850 m
- Tram 180 m
- Bus 200 m
- Railway station 5.0 km
- Airport 22 km


























































